Что входит в акцию:
- ПЛАНИРОВОЧНОЕ РЕШЕНИЕ — 19 т.р.:
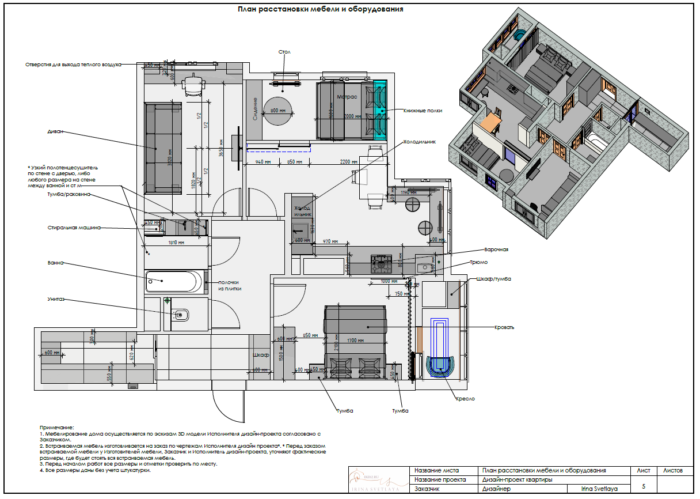
От Вас: обмеры и фото/видео помещения, заполненное ТЗ.
От нас: несколько вариантов расстановки мебели (зависит от ТЗ, размеров помещения и его назначения, согласны ли вы на перепланировку и т.д. Это влияет на возможность сделать большее количество вариантов).
В расстановке мебели, по Вашему желанию, учитываются уже приобретенные элементы (даете размеры любимого серванта или кресла которые переедут с вами).
После вычерчивания различных вариантов — договариваемся о встрече, где я подробно рассказываю все плюсы и минусы этих планировок, привожу примеры и, если нужно, даю контакты исполнителей.
Выбранный вами окончательный вариант планировочного решения перечерчивается и в формате PDF (если нужно и в распечатанном варианте) отдается Вам, вместе с планом обмера, демонтажа, монтажа.


2. ПЛАНИРОВОЧНОЕ РЕШЕНИЕ+ЭЛЕКТРИКА — 25 т.р.:
Планировочное решение + план электрики с расстановкой осветительного оборудования и групп включения.
(Не включает расчет нагрузки, прокладку трасс и пр. технические нюансы, это делают электрики).
